×
×
×

Arquitecto Mallorca



05.04.2026
ID: 261289
Proveedor:
AM
AcerOscuro Modulhaus Mallorca 0

Original: Alemán. Este anuncio ha sido traducido automáticamente.

Arquitecto Mallorca

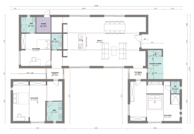
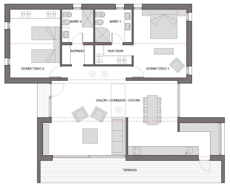
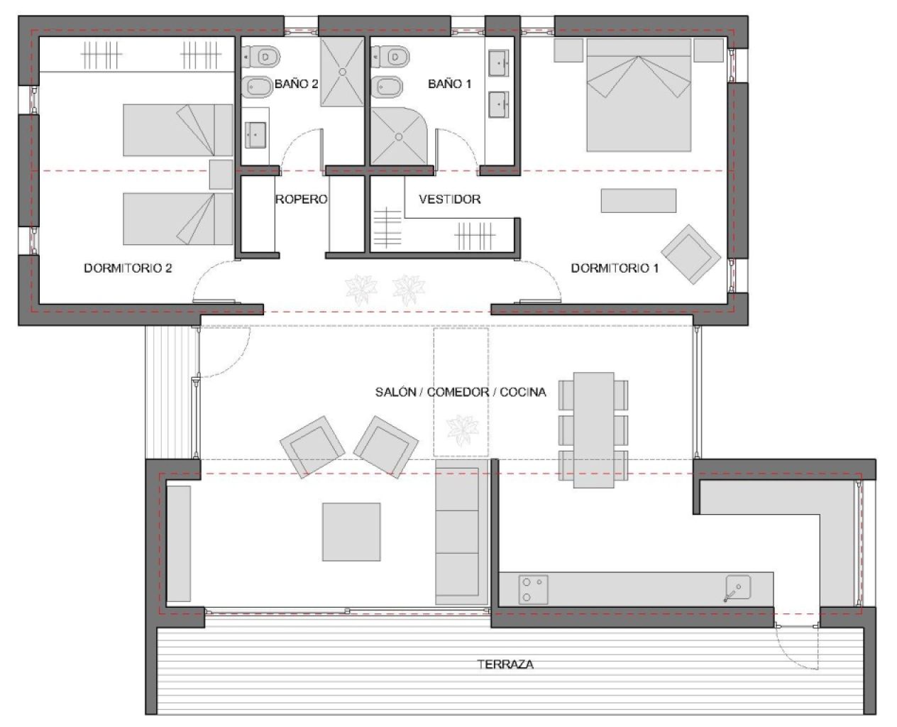
¿Desea construir su casa de ensueño en Mallorca o tal vez comprar y acondicionar una propiedad existente? Entonces podemos ayudarle a que su sueño se haga realidad sin problemas ni decepciones. Junto con usted elaboramos todos los diseños, planos y plantillas necesarios y solicitamos los permisos correspondientes. Solicitamos ofertas para los trabajos de construcción y dirigimos las obras en su parcela. Tras la finalización del proyecto de construcción, solicitamos las aprobaciones finales.

Con gusto le prepararemos una oferta. AcerOscuro Modulhaus Mallorca Contacto: Stefan Krause Tel.: +34 605 29 71 80

Mallorca Zero

Anuncios similares

Mallorca Zero