Neubau-Dachgeschosswohnung in Santa Catalina
Die perfekte Zuflucht in Palma! Entdecken Sie dieses exklusive Neubau-Dachgeschoss in Santa Catalina. 103 m² Wohnfläche, 2 Schlafzimmer im Suite-Format und ein beeindruckendes privates Solarium von 8...
Der höchste Luxus in der begehrtesten Gegend von Palma.
Neubau-Residenz zwischen Santa Catalina und Son Espanyolet. Wohnungen und Penthouse-Wohnungen mit Pool, Fitnessraum, Parkplatz und exklusiven Designs.
Die Residenz wurde in unterschiedlichen Höhen angelegt, um sich an verschiedene Bedürfnisse anzupassen, mit einem Energieeffizienzniveau B:
1-Zimmer-Wohnungen (Stockwerke 1 bis 3): Optimierte, offene Räume mit offener Küche und großen Fensterfronten. Die perfekte Investition oder das ideale Pied-à-terre in Palma. ( NICHT VERFÜGBAR )
2- und 3-Zimmer-Residenzen (Stockwerk 4): Majestätische Großzügigkeit, ideal zum Ganzjahreswohnen, mit einem Wohnzimmer, das sich zu großen Außenterrassen hin öffnet.
Das Juwel: Die Penthäuser: Wohnungen auf zwei Ebenen. Der Hauptbereich geht in die Terrasse über, während die obere Etage ein spektakuläres privates Solarium beherbergt, um Himmel, Sonne und die Brise von Palma in völliger Exklusivität zu genießen.
Wir verstehen Luxus als die Freiheit zu entscheiden, wie Sie leben möchten. Ihr Zuhause mit drei exklusiven Interior-Design-Kollektionen:
LIGHT (The Minimalist Style): Räume in Weiß- und sanften Grautönen, helle Bodenbeläge (Granite Cream) und offene Atmosphären, die das natürliche Licht maximieren.
SHINE (Light and Warmth): Wärme und intime Geborgenheit mit Naturhölzern (wie dem Oxford Eichenparkett), Quarztönen und eleganten marmorierten Oberflächen.
GLAM (Superlative Design): Höchste Raffinesse. Überlegene Eleganz durch dunkle Bodenbeläge (XTone Liem Black), markante Marmore, Grautöne und im Fischgrät verlegte Hölzer.
Fordern Sie weitere Informationen an und entdecken Sie Ihr neues Zuhause in Palma.
https://serman.properties
andreea@serman.properties
+34 643 70 99 11
Die perfekte Zuflucht in Palma! Entdecken Sie dieses exklusive Neubau-Dachgeschoss in Santa Catalina. 103 m² Wohnfläche, 2 Schlafzimmer im Suite-Format und ein beeindruckendes privates Solarium von 8...
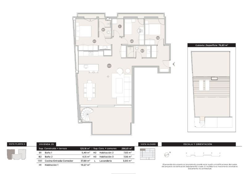
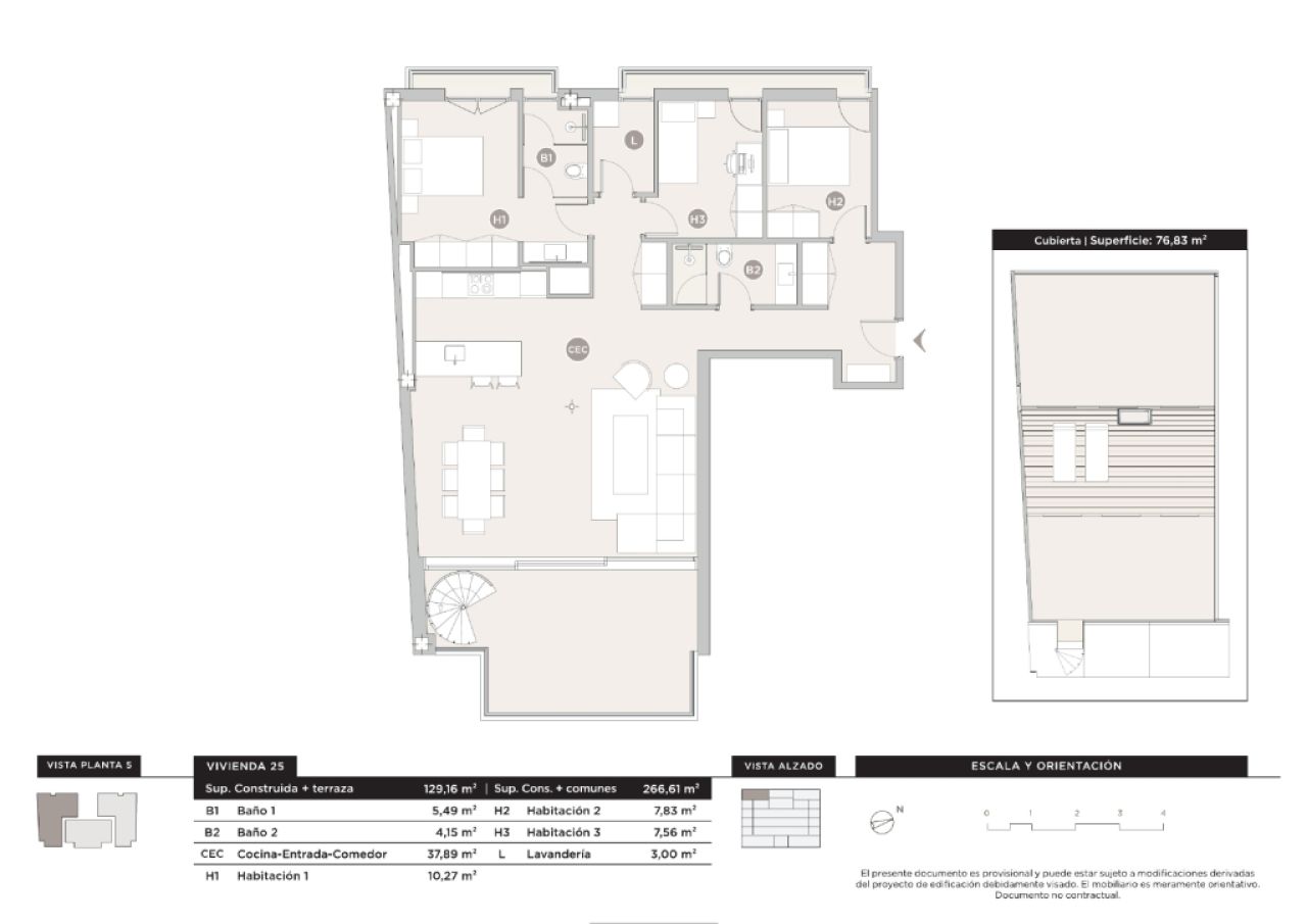
Das ultimative Penthouse in Palma! Entdecken Sie diese exklusive Neubauwohnung zwischen Santa Catalina und Son Espanyolet. 129 m² Wohnfläche, 3 Schlafzimmer, beeindruckendes privates Solarium von 76 m...
Die perfekte Investition in Palma! Entdecken Sie diese effiziente Neubauwohnung in Santa Catalina. 76 m² optimiert mit 2 Schlafzimmern, 2 Bädern und einer vorderen Terrasse. Genießen Sie Pool, Fitne...
Mediterrane Eleganz im Herzen von Cala d'Or Entdecken Sie dieses exklusive Anwesen, das kürzlich mit hochwertigen Materialien renoviert wurde und für diejenigen konzipiert wurde, die Komfort, Stil ...
Luxus-Penthouse zum Verkauf in Porto Cristo 180 m Unterkunft plus 180m2 Terrassen Zwei Schlafzimmer zwei Badezimmer. Eine Toilette auf der oberen Terrasse Klimaanlage und Heizung Küche Nolt...