Grundstück mit Baugenehmigung in Ses Salines
Ruhig und idyllisch gelegenes Grundstück im Gemeindegebiet von Ses Salines im Südosten Mallorcas, nur 10 Autominuten von den nächsten Stränden und 30 Minuten vom Flughafen in Palma de Mallorca entfern...
Exklusive Entwicklungsgelegenheit zwischen Ses Salines und Santanyí
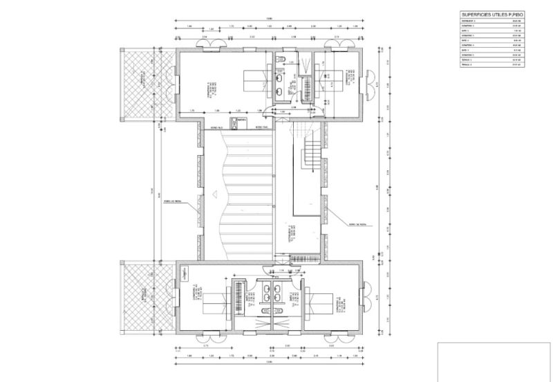
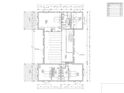
Dieses architektonisch anspruchsvolle Landhausprojekt befindet sich in einer sehr begehrten Lage zwischen Ses Salines und Santanyí, im Herzen des malerischen Südostens Mallorcas. Umgeben von der charakteristischen natürlichen Schönheit der Region bietet das Grundstück die perfekte Kulisse für einen stilvollen und ruhigen Rückzugsort.
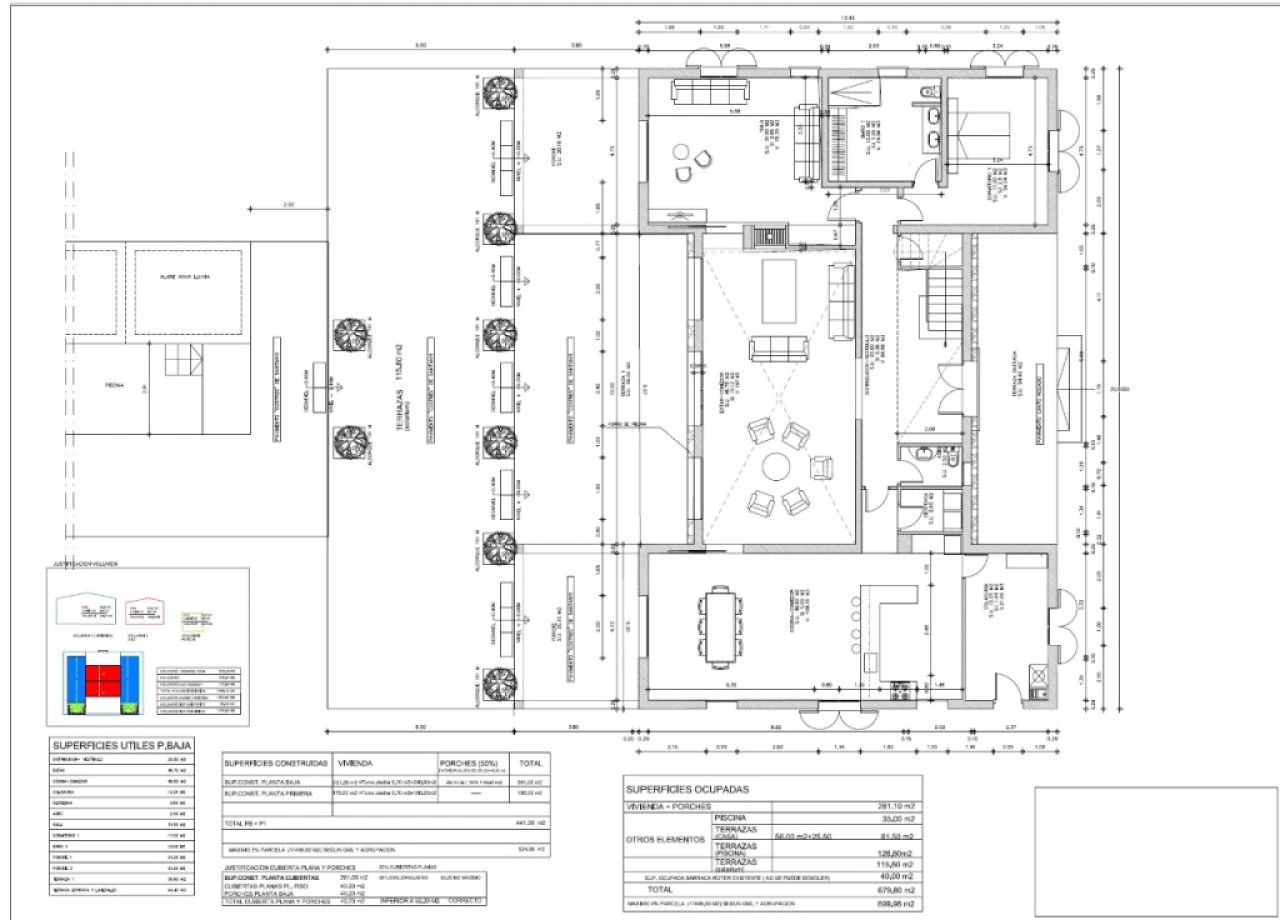
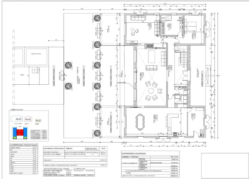
Das Designkonzept vereint moderne Ästhetik meisterhaft mit traditionellem mallorquinischem Charme und schafft ein Zuhause, das sowohl zeitgenössische Eleganz als auch mediterrane Authentizität ausstrahlt. Der Grundriss ist h-förmig gestaltet und legt großen Wert auf Offenheit, natürliches Licht und klare architektonische Linien.
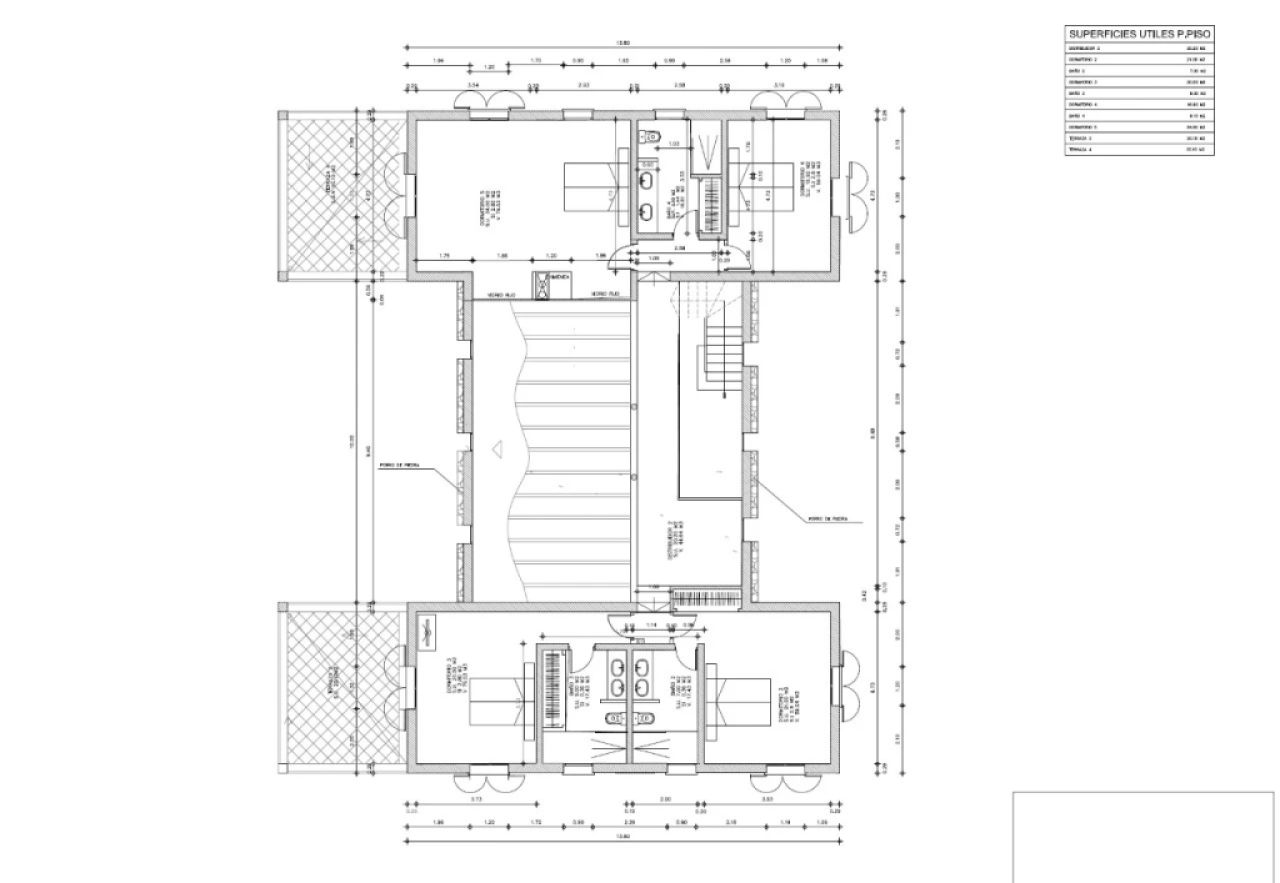
Geplant sind fünf großzügige Schlafzimmer – eines im Erdgeschoss und vier im Obergeschoss. Die Master Suite besteht aus zwei miteinander verbundenen Räumen, die flexible Nutzung ermöglichen, und alle Schlafzimmer können mit einem eigenen Bad ausgestattet werden.
Diese Immobilie ist sowohl als privates Domizil als auch als langfristige Investition besonders attraktiv. Die exzellente Lage, die anspruchsvolle architektonische Vision und das anpassungsfähige Design bilden eine herausragende Gelegenheit für anspruchsvolle Käufer, die ein hochwertiges Projekt mit Gestaltungsfreiheit suchen.
Das Grundstück liegt in einer ruhigen, natürlichen Umgebung mit guter Anbindung an die umliegenden Dörfer und die Küste. Es bietet Privatsphäre, Ruhe und beste Ausrichtung, um Innenräume harmonisch mit der Natur zu verbinden.
Hinweis: Der Angebotspreis umfasst das Grundstück und das genehmigte Bauprojekt. Die Baukosten sind nicht enthalten.
Ruhig und idyllisch gelegenes Grundstück im Gemeindegebiet von Ses Salines im Südosten Mallorcas, nur 10 Autominuten von den nächsten Stränden und 30 Minuten vom Flughafen in Palma de Mallorca entfern...
Grundstück in Ses Salines mit Blick auf die Landschaft. Ummauertes Grundstück mit ca. 25.895 m2 welches einige Bäumen und Pflanzbestand hat Asphaltierter Straßenzugang. Es gibt Strommasten, d...
Top-Gelegenheit! Dieses Grundstück mit 16.760 m2 zwischen Felanitx und Vilafranca de Bonany bietet absolute Ruhe und einen traumhaften Fernblick auf das mittelalterliche Kloster San Salvador. Es gibt ...
Neubaufinca aus dem Jahre 2024 mit allen Extras in guter Lage zwischen Lombards und dem Leuchtturm von Ses Salines. Aussenbereich: Das 16.736 m2 grosse Grundstück ist vollständig eingezäunt und ...
Wunderschönes Grundstück mit Olivenhain und Weinstöcken in idyllischer Lage zwischen Llucmajor und Es Trenc in dessen Mitte sich ein altes Steinhaus von 9 x 14m befindet, das renoviert werden kann. Da...