×
×
×

Buildable plot with project near Portocolom



12.03.2026
ID: 262775
Provider:
SE
Serman.Properties 0

Original: Spanish. This ad was automatically translated.
299.000 €

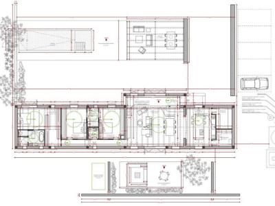
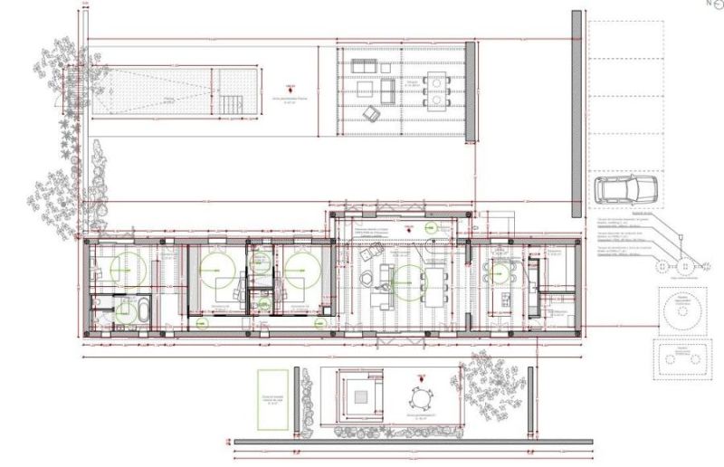
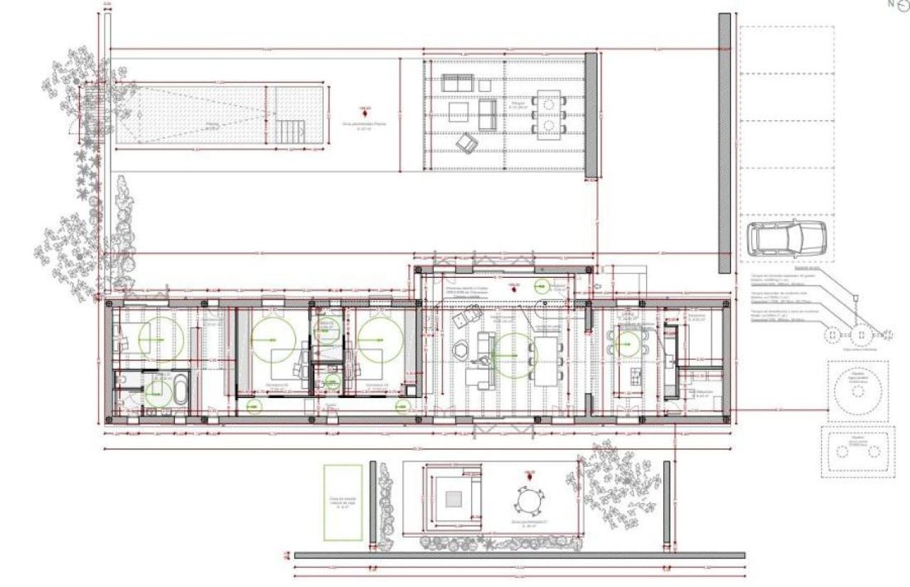
Buildable plot with project near Portocolom

Do you want to build in Mallorca without waiting years for the permit? Discover this plot of 48,822 m² 3 minutes from Portocolom. Permits already granted to start building a 236 m² chalet with a pool. Save time and bureaucracy for €299,000.

Property type: Buildable Plot
Pool: 33 m2
Plot: 48822 m2

andreea@serman.properties
+34 643 70 99 11
https://serman.properties/producto/terreno-edificable-con-proyecto-cerca-de-portocolom/

Mallorca Zero